USD 72.000
PH EN ALMAGRO CON PATIO Y GRAN POTENCIAL

La propiedad indicada se encuentra Reservada
Interesado en la propiedad? Llame +541154932526 ó contactenos

Descripción

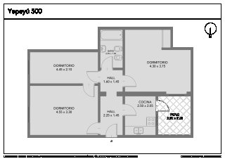
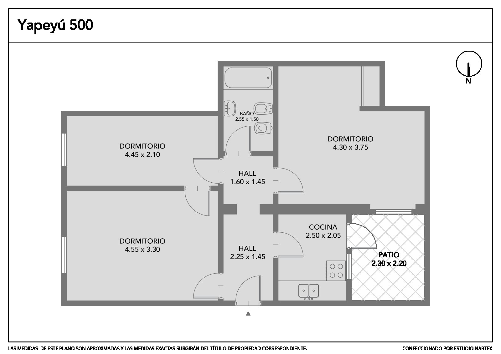
Oportunidad única para quienes buscan metros reales, patio propio y posibilidad de revalorización. PH de estilo clásico, ubicado en planta baja, con 60 m² cubiertos más 5 m² de patio interno exclusivo, ideal para renovar y transformar según tu propio proyecto. Características destacadas • 2 dormitorios * Uno con vista a la calle * Otro con vista al patio Ambos con excelente ingreso de luz natural. • Living comedor con ventana a la calle, orientación Este, que recibe sol directo por la mañana. • Cocina independiente, con salida directa al patio interno, ofreciendo un gran potencial para crear un espacio exterior funcional y encantador. • Baño completo, listo para actualizar y personalizar. • Patio interno exclusivo, ideal para sumar verde, sector de relax o lavadero. El edificio • PH sin amenities • Expensas: $62.000 • Edificio de aproximadamente 50 años, con carácter porteño, estructura sólida y excelente proyección a futuro. Ideal para: Vivienda propia Proyecto de reciclado Inversión con alta posibilidad de revalorización Un PH con identidad, metros bien distribuidos y el valor agregado que hoy marca la diferencia: patio + luz + ubicación. Consultanos para coordinar una visita y descubrir todo su potencial. Toda la información del aviso, incluyendo medidas, precio, impuestos, servicios, etc. son estimativos, sujetos a modificación y no vinculantes, según lo dispuesto en el art. 973, Cód. Civ. y Com.


Almagro, Capital Federal, Capital Federal